Le plan du temple

 

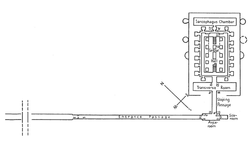
L'entrée de l'Osiréion se faisait par un tunnel de 32 mètres de long. Il permet d"accéder à l'antichambre dédiée à Osiris. Elle est flanquée par une salle au Sud. Un passage en pente donne sur le hall central et la salle du sarcophage au Sud. La page 'Description' permet d'avoir une première vue des différentes parties.

 

[Le plan][Description de l'Osiréion]

 

[Retour]

 

Copyright (c) robert rothenflug