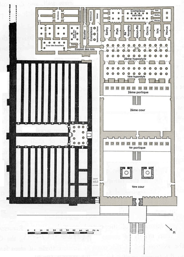
Le plan du temple de Sethy 1er

 

Le plan ci-contre représente à droite le temple et à gauche les magasins dotés d'une entrée à colonnes.
Les deux cours ainsi que le portique ont été ajoutés par Ramsès II, son fils à un corps de temple laissé inachevé par Sethy 1er.

Le plan du temple est en L avec une partie principale rectiligne et des salles annexes placées sur le côté.
Sept voies processionnelles traversent les deux salles hypostyles pour aboutir aux sept chapelles qui font de ce temple un condensé de tous les temples d'Égypte. Au nord, trois chapelles sont consacrées à la Triade d'Abydos, Osiris, Isis et Horus.Les dieux primordiaux ont chacun droit à une chapelle : Ptah (Menphis), Rê-Horakhty (Héliopolis) et Amon-Rê (Thèbes-Karnak). Ces 6 chapelles sont décorées avec des représentations du rituel divin journalier adressé au dieu de la chapelle.
Enfin; à gauche, une chapelle est consacrée à la consécration de Sethy en tant que roi.
La chapelle d'Osiris donne places à un temple dans le temple, avec deux salles hypostyles et surtout trois chapelles dédiées à Osiris, Isis et Horus.
A gauche de la chapelle de Sethy 1er,une porte permettait d'accéder au complexe dédié aux dieux Nefertoum et Sokar où l'on peut voir les fameuses scènes d'Isis fécondée par Osiris ressuscité.

Une autre porte de la paroi Sud de la seconde salle hypostyle ouvre sur le couloir dit des rois  avec la liste des rois d'Égypte. Il donne accès à la salle des barques, au hall des bouchers et à l'escalier de sortie. Vers l'Ouest est situé l'Osiréion.

 

[Mur moderne et vestiges][Premier pylône][Le plan du temple]

 

[Retour]

Copyright (c) robert rothenflug