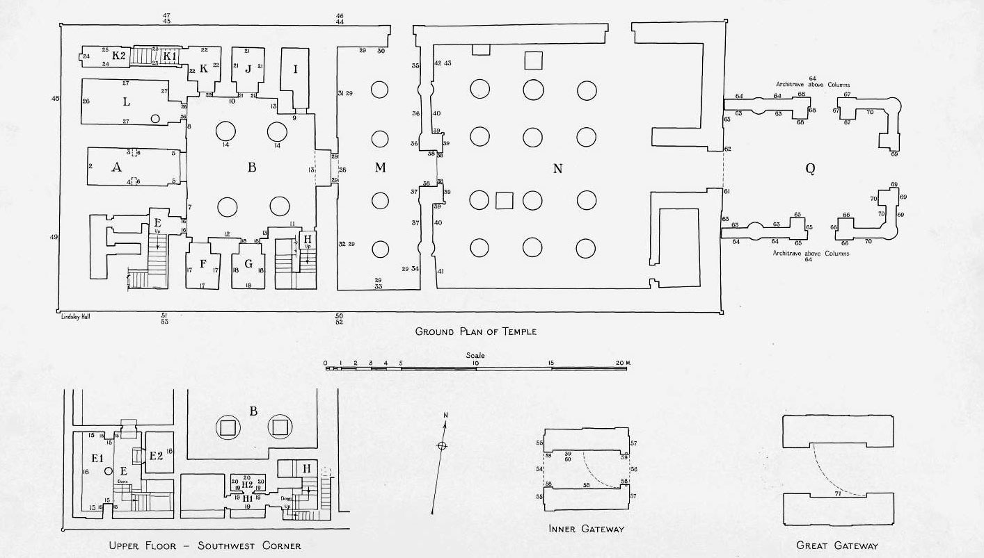
Le plan du temple d'Hibis

 

Deux des trois portes sont dessinées en bas à droite. Ensuite se trouve le bâtiment principal précédé d'un portique construit sous les Necttanebo (Dynastie XXX, -380 à -343).. La première hypostyle (N) serait due à Achoris (-393 à -380, Dynastie 29). Le reste de l'édifice a été construit précédemment par Darius Ier (-521 à -486).Deux escaliers permettent d'accéder aux salles du toit qui sont partiellement décorées. Les parois extérieures sont elles-aussi décorées en grande partie.   Les nombres indiquent les numéros des planches de Davies sur la décoration des parois (The temple of Hibis,Part III, The decoration). (Plan de Wikipedia Common).

 

[La porte extérieure][Le plan du temple]

 

[Retour]

Copyright (c) robert rothenflug